Kirjeldus
KINNISTU
Müügipakkumine koosneb kahest kinnistust:
15905:004:0678; elamumaa; 14568.0 m²
15905:004:0023; maatulundusmaa; 4577.0 m² (kaetud metsaga)
Kinnistu on hoolitsetud.
On istutatud viljapuid ja marjapõõsaid, külvatud muru ning sobiva koha on leidnud ka ilupuud.
Kinnistul on 5 ehitist: elumaja, saun, ait, 2 kuuri.
Tööst on väsinud kalapaat ei jäksa muud teha, kui vaid silmailu pakkuda.
MAJA
Ehitise kasutusele võtuks on märgitud 1902.a.
Maja on võimalik kasutada ka aastaringselt.
Registris on kirje: üksikelamu
Maja ehitusalune pind on ca 72m2
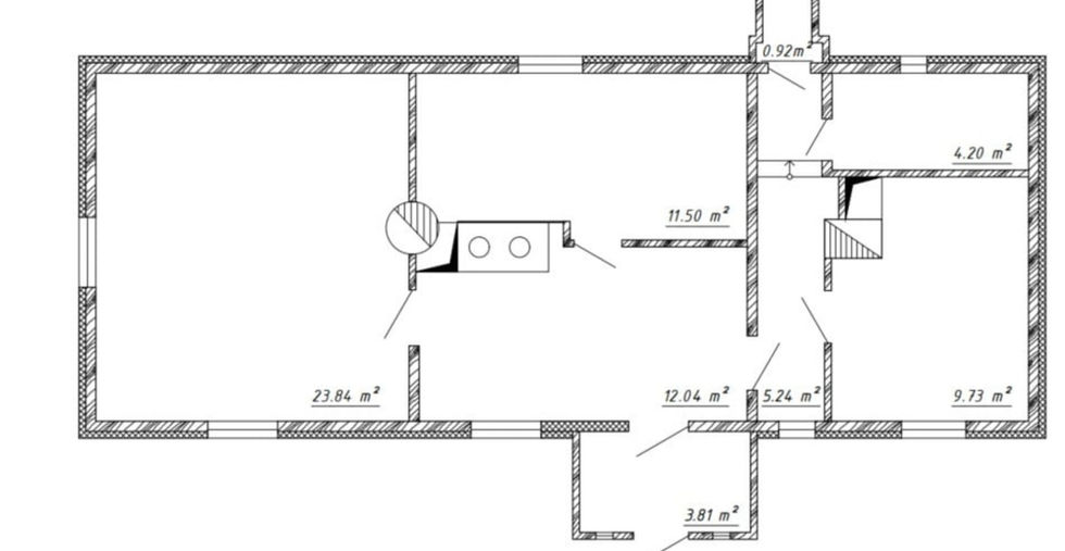
PLANEERING
Majja sissepääs toimub tuulekoja ukse kaudu.
Nii jõuame kööki, mida saab nimetada maja südameks, sest siit saab alguse kõik.
Siit köögist avanevad uksed elu- ning magamistubadesse.
Maja parmal pool olev väike 4m2 tuba ootab renoveerimist, mille tulemusena peaks see muutuma wc-dušširuumiks.
SISEVIIMISTLUS
Majas domineerib naturaalne puit: puhastatud palk ja laudpõrandad.
Maitsekalt on kombineeritud heledad värvitud pinnad tapeedi ja puitviimistlusega.
KONSTRUKTSIOON
Vundament – madalvundament
Välisseinad – palk
Välisviimistlus – viimistlus voodrilauaga
Vaheseinad – puitkarkass
Vahelagi – puittalad
Põrandaid katab laialaudne puit
Katus – eterniit
Aknad – vanad puitaknad, uksed – puit
KOMMUNIKATSIOONID, KÜTTESÜSTEEM JA INFO
Kütteallikad- ahi, pliit.
Ventilatsioon – loomulik ventilatsioon.
Vesi on lokaalne, 2 kaevu. Tsentraalse liitumise võimalus olemas.
Kanalisatsioon on rajatav lokaalne.
Elekter 3x25A, uus juhtmestik.
Internet- kiudoptiline kaabel on kinnistul, vaja on vaid liituda.
Küttepuu- oma metsast.
Energiamärgis – hetkel puudub
ASUKOHT
On tegemist elamute-suvilate piirkonnaga, mis on rahulik ja vaikne.
Meretuule eest kaitsevad puud ja seni laine õuele veel vahtu ei ole toonud.
Lindi Lasteaed-Algkool ca 6 km
Kaupluse kaugus ca 4 km.
Bussipeatus ca 450 m.
Kui tahad teada, kui kaugel on Pärnu, siis on see LÄHEDAL! ca 20km.
Seega, kui sulle meeldib mere kohin ja soolalõhnane õhk, kaluripaadi kaugusest kostuv potsuv mootorihääl, kui Sorgu saare majakas pilgutab sulle silma, siis haara kinni pakutavast ja tee oma unistus teoks.
Kontakt
Ranner Stamm
5526600
Kuulutuse info:
Liik
Maja
Tubade arv
4
Tualett
1
Suurus
19145 m²
Korruseid
1
Ehitus aasta
1905
ASUKOHT
Liu, Pärnu maakond, Eesti
.png)
























